Vừa qua, ông Lê Anh Quân, Phó chủ tịch Thường trực UBND thành phố Hải Phòng đã đi kiểm tra, nghe báo cáo tiến độ triển khai các dự án đầu tư xây dựng hạ tầng kỹ thuật các cụm công nghiệp: An Thọ, Chiến Thắng, Dũng Tiến - Giang Biên và An Phụ.

Ông Lê Anh Quân, Phó chủ tịch Thường trực UBND thành phố Hải Phòng kiểm tra thực địa cụm công nghiệp An Phụ tại phường Trần Liễu và phường Kinh Môn.
Theo quy hoạch, Cụm công nghiệp An Thọ (xã An Hưng, thuộc Khu kinh tế ven biển phía Nam) có tổng mức đầu tư hơn 479 tỷ đồng, quy mô gần 50 ha, do Công ty CP Đầu tư An Thọ làm chủ đầu tư. Hiện, dự án đã hoàn thành giải phóng mặt bằng, đang thực hiện song song các thủ tục về môi trường, phòng cháy chữa cháy, thuê đất và cấp phép xây dựng.
Tiếp đó, Cụm công nghiệp Chiến Thắng (xã An Hưng) do Công ty TNHH Ô tô Chiến Thắng làm chủ đầu tư có tổng mức đầu tư hơn 392 tỷ đồng, quy mô 30 ha. Dự án đã hoàn thành giải phóng mặt bằng, thẩm duyệt phương án phòng cháy, chữa cháy… được UBND thành phố cho thuê đất và cấp giấy chứng nhận quyền sử dụng đất. Dự án đang hoàn thiện hồ sơ cấp phép xây dựng.
Cụm công nghiệp Dũng Tiến - Giang Biên (xã Vĩnh Thuận) do Công ty CP Công nghiệp Dũng Tiến làm chủ đầu tư, tổng vốn đầu tư 486,932 tỷ đồng, quy mô 49,97 ha, đã hoàn thành các thủ tục cần thiết, đang thực hiện thủ tục điều chỉnh chủ trương đầu tư, thẩm định báo cáo nghiên cứu khả thi và cấp phép xây dựng.
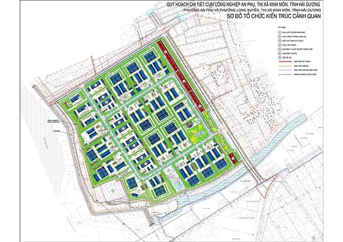
Còn dự án Cụm công nghiệp An Phụ (phường Trần Liễu và Kinh Môn, tỉnh Hải Dương cũ) do Công ty CP Đầu tư NewLand làm chủ đầu tư. Cụm công nghiệp có quy mô 47,4 ha, tổng mức đầu tư 695,389 tỷ đồng. Dự án hiện đã giải phóng mặt bằng được 43,49 ha, hoàn thành thẩm định hồ sơ, đánh giá tác động môi trường; đang tiếp tục giải phóng phần diện tích còn lại và di dời hơn 400 ngôi mộ để đủ điều kiện khởi công trong tháng 12/2025.

Sơ đồ tổ chức kiến trúc cảnh quan cụm công nghiệp An Phụ.
Qua kiểm tra thực tế tiến độ triển khai thực hiện Dự án đầu tư xây dựng hạ tầng kỹ thuật cụm công nghiệp An Phụ tại phường Trần Liễu và phường Kinh Môn, Phó chủ tịch Thường trực UBND thành phố Hải Phòng yêu cầu các đơn vị khẩn trương tháo gỡ khó khăn, hoàn thiện các thủ tục pháp lý, phấn đấu khởi công các cụm công nghiệp vào ngày 19/12 chào mừng Đại hội đại biểu toàn quốc lần thứ XIV của Đảng.
Đối với phường Trần Liễu, cần phải hoàn thành phê duyệt phương án bồi thường giải phóng mặt bằng phần còn lại trước ngày 10/11; tuyên truyền, vận động chi trả người dân trong tháng 1, đồng thời lập hồ sơ xin ý kiến các sở, ngành để thu hồi đất theo quy định. Nếu cần thực hiện biện pháp cưỡng chế phải hoàn thành trước ngày 10/12.
Phó chủ tịch Thường trực UBND thành phố Hải Phòng phê bình các chủ đầu tư dự án cụm công nghiệp An Thọ và An Phụ vì chưa đáp ứng tiến độ hoàn thành hồ sơ, thủ tục đầu tư. Các chủ đầu tư khẩn trương phối hợp với địa phương, sở, ngành, tập trung nguồn lực, giải quyết dứt điểm các tồn đọng về giao đất, giải phóng mặt bằng, môi trường, phòng cháy, chữa cháy, đánh giá tác động môi trường, bảo đảm các điều kiện khởi công theo đúng kế hoạch.
Phó chủ tịch Thường trực UBND thành phố Hải Phòng giao Sở Công thương Hải Phòng đôn đốc, hướng dẫn các địa phương hoàn thiện thủ tục, tháo gỡ khó khăn, đẩy nhanh tiến độ, sớm đưa các cụm công nghiệp vào khai thác, thu hút đầu tư hiệu quả.
Đồng thời, rà soát toàn bộ 80 cụm công nghiệp với quy mô trên 4.000 ha trên địa bàn thành phố về tính phù hợp quy hoạch, môi trường, an ninh trật tự, hiệu quả sử dụng đất.